Apartamento t2 com Jardim na Lapa

709 224€

  • 2
  • 2
  • 4
  • Usable: 111m2
  • Floor: 160m2
  • C.E.: Exempt
  • Year: 2021
  • Ref: 44871-MCNL60356

Location

Lisboa, Lisboa, Estrela, Arredores (Lapa)

Description

Junto á Tapa das Necessidades, a cinco minutos do Jardim e Basílica da Estrela , a cinco minutos da nova CUF Tejo, a oito minutos do centro comercial Amoreiras e da Ponte 25 de Abril.

É aqui no centro da Lapa que se encontra este fantástico T2 em Prédio de típico Azulejo Português NOVO A ESTREAR com suite e cozinha equipada + Anexo com WC e kitchenette separados por um fantástico Jardim privativo no centro da cidade de Lisboa.
Não perca tempo e marque já a sua visita o quanto antes.

Sempre ao seu dispor
Mais consultores Imobiliária

Attributes

  • Double glazed windows
  • Air Conditioning
  • Equipped Kitchen
  • Elevator
  • Storage area
  • Security Door
  • Garden
  • Video Doorman
  • Suite

Divisions

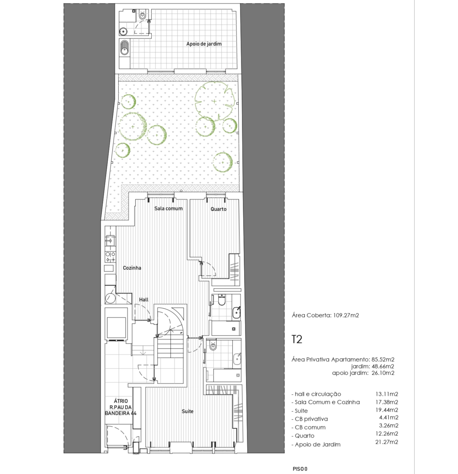
Blueprints

Floor name: Piso 0

Division Area Note
Bedroom 1226.00m2
Suite 1944.00m2
Entrance Hall 1311.00m2
Kitchenette 1738.00m2
Garden 2127.00m2
Under Stair Storage 2127.00m2
WC Suite
WC Completo
WC Completo
Kitchenette